Lublin, Wieniawa, Miasteczko Akademickie

Mieszkanie na sprzedaż

5 pokoi wysoki parter 95,00 m2 10 842,11 zł/m2

1 030 000 zł

nowa oferta

Opis nieruchomości

WIDNE PRZESTRONNE MIESZKANIE Z MIEJSCEM POSTOJOWYM NA WIENIAWIE 

Na sprzedaż wyjątkowe przestronne mieszkanie z wysokimi sufitami o powierzchni 95 m², zlokalizowane w samym sercu Lublina.

Nieruchomość  przeszła generalny remont, w pomieszczeniach znajdują się nowe elementy wykończenia i wyposażenia, mieszkanie nie było jeszcze zamieszkałe.


To doskonała propozycja zarówno dla osób poszukujących komfortowego lokum w centrum miasta, jak i pod działalność biurową – idealne miejsce na kancelarię notarialną, adwokacką czy biuro rachunkowe.

Dzięki przestronnym pomieszczeniom wnętrze pozwala na dowolną aranżację i dopasowanie do własnych potrzeb.

Kuchnia została zaprojektowana jako nowoczesny aneks otwarty na salon – idealne miejsce do gotowania i spotkań z bliskimi. Wyposażenie kuchenne: płyta indukcyjna, piekarnik, mikrofalówka, zmywarka, okap. 

Wyposażenie łazienki: 
prysznic oraz natrysk, bidet, wc, dwie umywalki.
 
W kuchni oraz łazience na ścianach znajdują się płytki dużego formatu

Duże okna sprawiają, że wnętrze jest jasne i pełne naturalnego światła.

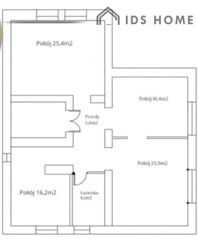
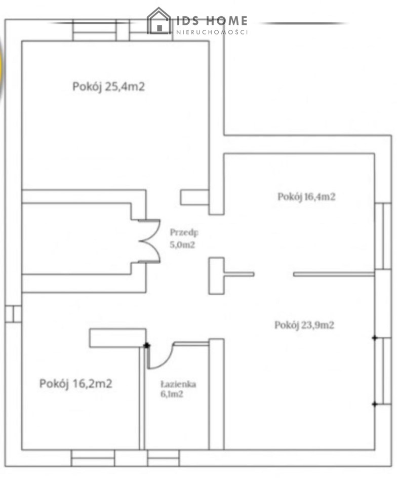
Rozkład mieszkania:

Pokój 1: 13 m² 
– Pokój 2: 10 m2
Pokój 3: 16,4 m²
Pokój 4: 23,9 m² ( pokój dzienny + aneks kuchenny na planie otwartym)
Pokój 5: 16,2 m²
Łazienka: 6 m²
- Przedpokój: 5 m²

Atuty:
– doskonała lokalizacja w centrum Lublina, blisko sklepów, restauracji i komunikacji miejskiej
– nieruchomość po generalnym remoncie, gotowa do wprowadzenia
– przestronne i funkcjonalne pomieszczenia
– możliwość dostosowania układu do własnych potrzeb
– miejsce parkingowe przed budynkiem.

Czynsz administracyjny 500 zł, dodatkowe opłaty wg liczników: woda, prąd, ogrzewanie, wywóz śmieci. 

Możliwa również wynajem oferowanej nieruchomości.

Pomagamy również  w dobraniu najlepszej oferty finansowania nieruchomości.


Zapraszamy do kontaktu i umówienia prezentacji tej wyjątkowej nieruchomości!


Przedstawiona oferta ma charakter informacyjny i nie stanowi oferty handlowej w rozumieniu Art.66 par.1 Kodeksu Cywilnego.

Nota prawna

Opis oferty zawarty na stronie internetowej sporządzany jest na podstawie oględzin nieruchomości oraz informacji uzyskanych od właściciela, może podlegać aktualizacji i nie stanowi oferty określonej w art. 66 i następnych K.C.

Szczegóły

Symbol oferty IDS-MS-353
Powierzchnia 95,00 m²
Liczba pokoi 5
Piętro wysoki parter
Rodzaj budynku budynek wielorodzinny
Opłaty w czynszu woda, fundusz remontowy
Garaż miejsce parkingowe przy budynku
Stan lokalu wysoki standard
Mies. czynsz admin. 500 PLN

Pomieszczenia

Podłogi pokoi panele
Rodzaj kuchni aneks kuchenny - połączony z jadalnią
Typ łazienki razem z wc
Liczba przedpokoi 1

Podobne oferty

Mieszkanie na sprzedaż - Lublin, Węglin
mieszkanie na sprzedaż - Lublin, Węglin

IDS-MS-322

Lublin, Węglin
mieszkanie na sprzedaż

4 pokoje 171,00 m²

1 149 000
6 719,30 zł/m2
Dodaj
do notatnika
Mieszkanie na sprzedaż - Lublin, Śródmieście, Centrum
mieszkanie na sprzedaż - Lublin, Śródmieście, Centrum

IDS-MS-117

Lublin, Śródmieście,…
mieszkanie na sprzedaż

3 pokoje 58,00 m²

957 000
16 500,00 zł/m2
Dodaj
do notatnika
PLN
PLN
PLN
PLN
PLN
PLN
PLN
%
PLN
PLN
PLN

PLN

Dane:

PLN
%

Wynik:

PLN
pierwsza rata
ostatnia rata

Napisz do nas

Proszę wypełnić to pole
Proszę wypełnić to pole
Proszę wypełnić to pole
Proszę wypełnić to pole
Trwa wysyłanie...

Ta strona wykorzystuje pliki cookies w celach statystycznych oraz w celu dostosowania naszych serwisów do indywidualnych potrzeb klientów. Zmiany ustawień dotyczących plików cookie można dokonać w dowolnej chwili modyfikując ustawienia przeglądarki. Korzystanie z tej strony bez zmian ustawień dotyczących cookies oznacza, że będą one zapisane w pamięci urządzenia.

rozumiem