







Opis nieruchomości
Oferujemy Państwu mieszkanie w nowej inwestycji w stanie deweloperskim położone w dzielnicy Czechów.Lokalizacja to niewątpliwy atut nieruchomości. Apartamentowiec powstaje o krok od centrum, a jednocześnie w bezpośrednim sąsiedztwie terenów zielonych – parku o pow. ponad 1 ha.
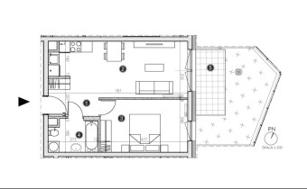
Rozkład:
- korytarz 5,13 m2
- salon + aneks kuchenny 18,81 m2
- sypialnia 11,79 m2
- łazienka 3,86 m2
- balkon 4,50 m2
Miejsce postojowe w garażu podziemnym płatne dodatkowo 50 000 PLN.
Atuty nieruchomości:
- doskonała lokalizacja,
- Smart Home,
- cichobieżne windy,
- nowoczesny design,
- lobby z recepcją,
- wysoka jakość materiałów.
Oddanie inwestycji nastąpi w kwietniu 2026 roku.
Zapewnimy również finansowanie nieruchomości.
Zapraszamy do kontaktu i po więcej szczegółów.
Przedstawiona oferta ma charakter informacyjny i nie stanowi oferty handlowej w rozumieniu Art.66 par.1 Kodeksu Cywilnego.